Home
Projects
Residential - Self Build
Churchend Nurseries
Blewbury
Cherrington
Residential - Developments
Rectory Avenue
Public - Commercial/ Healthcare
Page Park Cafe
St Peters Hospice
Public - Community/ Education
Lifton Community Centre
Our Services
About Us
News
Useful Links
Contact
Residential - Self Build
Button
Residential - Developments
Photo By: John Doe
Button
Public - Commercial/ Healthcare
Button
Public - Community/ Educational
Photo by: John Doe
Button
07738172535
enquires@mendiptimberdesigns.co.uk
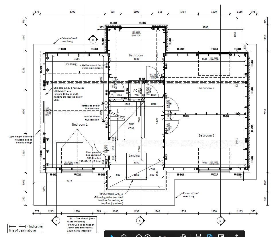
Cherrington
The Cherrington project is a relatively simple two story timber frame with dormer windows. Complexities added by the extent of glazing to the GF living area and glazed gable end to the master bedroom.
Back to Residential - Self Build
Button
Button
Button
Button
Back to Residential - Self Build
POST
Mendip Timber Designs Ltd
54 Woodborough Road
Winscombe
BS25 1BA
CONTACT
07738172535
enquiries@mendiptimberdesigns.co.uk
CONNECT
Mendip Timber Designs Ltd © 2019. All Rights Reserved | Registered in Cardiff. Registered No. 10367610 | VAT Reg No. 255 6449 79 |
Privacy Policy
|
Email Disclaimer
|
T & C's
Share by: