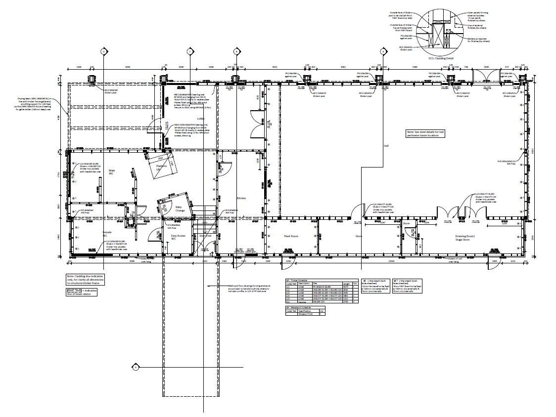
Lifton Community Centre
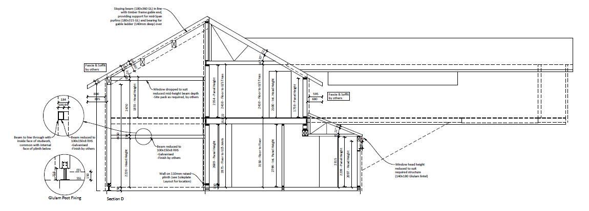
Lifton Community Centre is a split level community hall and offices. On a project like this incorporating the racking (wind loading) frames and beams into the timber frame for stability and marrying up levels to suit a varying site all need to be carefully considered.




