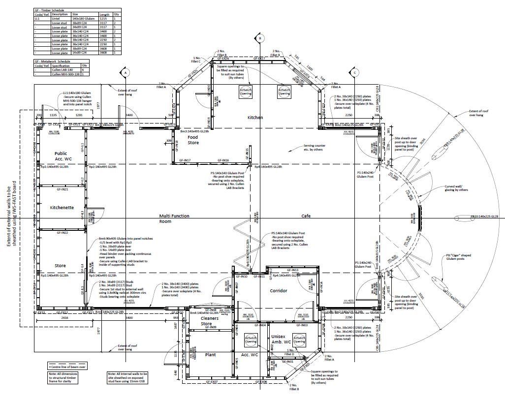
Page Park Cafe
Page Park Cafe was one of Mendip Timber Designs first projects. A striking concept with a curved, disk shaped roof that really formed the whole basis for the structural design.
This project required some quite creative design and engineering solutions, the roof being the main design issue, followed by the support of it on the skewed 'cigar' Glulam posts.







